ВЫБРАТЬ ДОМ •
ВЫБРАТЬ ДОМ •
ВЫБРАТЬ ДОМ •
ВЫБРАТЬ ДОМ •
ВЫБРАТЬ ДОМ •
ЗАГОРОДНЫЙ ДОМ D
ХАРАКТЕРИСТИКИ
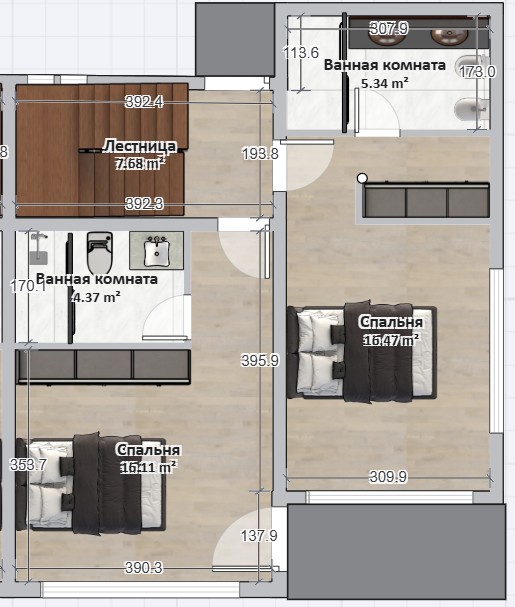
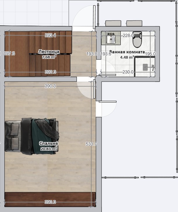
Площадь дома: 223 м²
Площадь участка: 360 м²
Бассейн: 25 м²
Спальни: 4
Паркинг: 2 паркоместа
ОПИСАНИЕ
- Светлая гостиная открытой планировки с современной кухней и панорамными окнами
- 3 просторные спальни, каждая с собственной ванной комнатой
- 3 гостевые ванные комнаты
- Комната отдыха с дополнительной кухней возле бассеина
- Большая мансарда (возможность использовать как спальня или кабинет) с выходом на панорамную террасу
- Собственный бассейн и ландшафтный сад с оливковыми деревьями
- Высококачественная отделка и комплектация: натуральный непористый камень толщиной 30 мм, керамика премиум-класса, натуральный дубовый паркет, бытовая техника и стильная мебель
- Полностью меблирован и готов к заселению.
